Адрес
-
Град: Варна
-
Квартал: Широк център
-
Държава: България
Общ преглед
- 3-стаен
- 2
- 1
- 126
Детайли
Обновен на юли 23, 2025 в 2:43 pm-
Имот ID 20167392
-
Цена 250,000€
-
Квадратура 126
-
Спални 2
-
Стаи 3
-
Баня 1
-
Тип имот 3-стаен
-
Статус на имот Продава
-
Обзавеждане Необзаведен
-
Вид строителство Тухла
-
Цена кв.м. 1983
-
Ново строителство Да
-
Балкони (бр.) 1
Описание
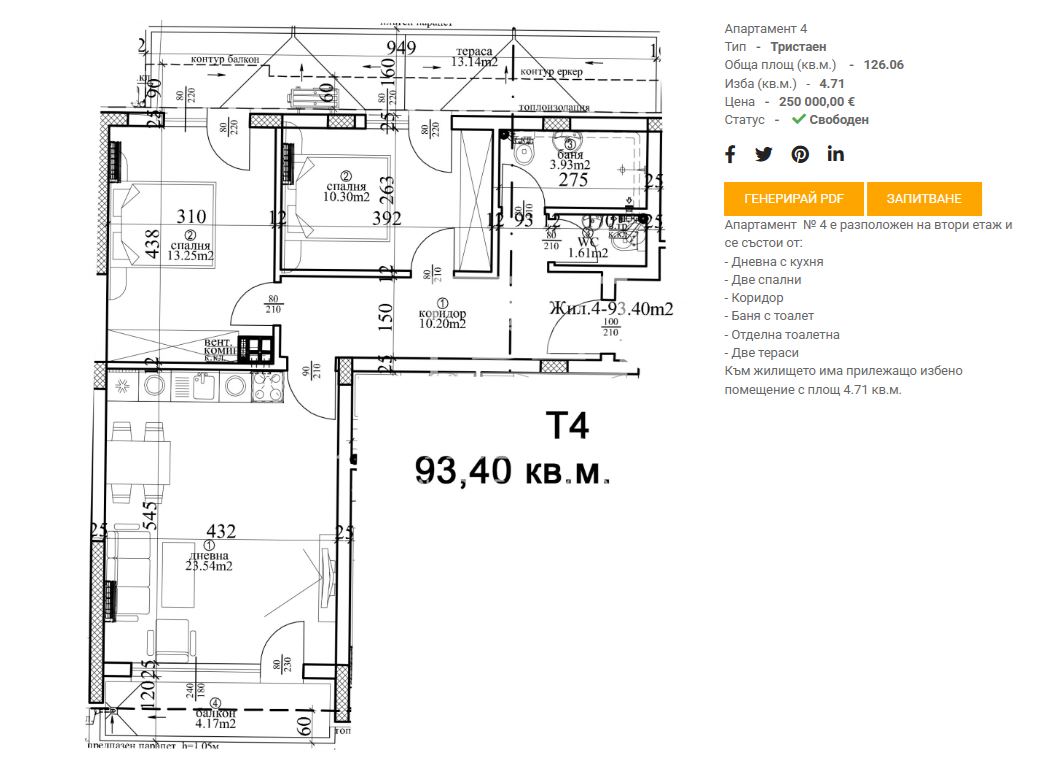
Предлагаме Ви просторен тристаен апартамент с площ от 126 кв.м, разположен на втори етаж в сграда с Акт 16, намираща се в един от най-предпочитаните райони на града – Централна поща.
✨ Характеристики:
Етаж: 2
Разпределение:
Просторен дневен тракт с кухненска зона и трапезария
Две самостоятелни спални
Баня с тоалетна
Балкон
📍 Локация:
Апартаментът се намира в отлична централна локация, в близост до Централна поща, с бърз достъп до магазини, училища, спирки на градски транспорт, административни сгради и заведения.
💰 Цена: 250 000 €
📱 Телефон за контакт: Стефка Петрова – 0882466606
Ипотечен калкулатор
-
Първоначална вноска
-
Размер на заема
-
Месечно ипотечно плащане
-
Застраховка на дома
