Адрес
-
Град: Варна
-
Квартал: Чайка
-
Държава: България
Общ преглед
- 4-стаен
- 3
- 1
- 87
Детайли
Обновен на февруари 27, 2026 в 10:01 am-
Имот ID 20167637
-
Цена 215,000€
-
Квадратура 87
-
Спални 3
-
Стаи 4
-
Баня 1
-
Тип имот 4-стаен
-
Статус на имот Продава
-
Етаж 10
-
Етажи 10
-
Вид строителство Тухла
-
Цена кв.м. 2472
-
Балкони (бр.) 2
-
Тоалетни (бр.) 1
Описание
България Естейт предлага за продажба просторен тухлен, среден апартамент в гр. Варна, кв. Чайка – един от най-предпочитаните райони в града.
📐 Основни характеристики:
Чиста жилищна площ: 86,97 кв.м
Избено помещение: 11,88 кв.м
Етаж: 10-ти (последен) в сграда с асансьор
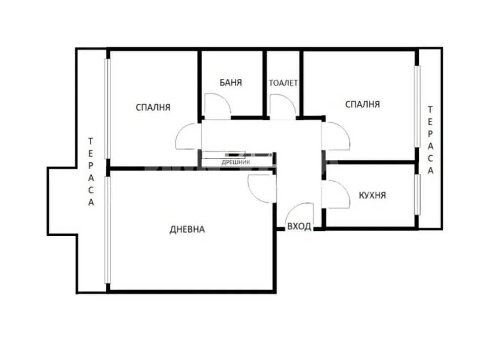
Разпределение:
Три стаи
Кухня
Коридор
Баня
Тоалетна
Две големи тераси
🌅 Предимства на имота:
Уникална панорамна гледка към морето
Изложение изток–запад – светлина и уют през целия ден
Среден апартамент – топъл и енергийно ефективен
Свободни места за паркиране около сградата
Жилището е за основен ремонт, което дава отлична възможност на новите собственици да го преобразят изцяло по свой вкус и стил.
📍 Локация:
Имотът се намира в район с отлична инфраструктура – удобен градски транспорт, училища, детски градини, магазини и пешеходно разстояние до Морската градина.
Подходящ е както за семейно жилище, така и за инвестиция с цел отдаване под наем.
💶 Цена: 215 000 евро
Посетете www.bulgaria-estate.com и открийте още актуални оферти за наем и продажба на имоти във Варна и областта.
E-mail: office@bulgaria-estate.com
Екстри
Ипотечен калкулатор
-
Първоначална вноска
-
Размер на заема
-
Месечно ипотечно плащане
-
Застраховка на дома
