Adresse
-
Stadt: Varna
-
Nachbarschaft: Bezirkskrankenhaus
-
Land: Bulgarien
Video
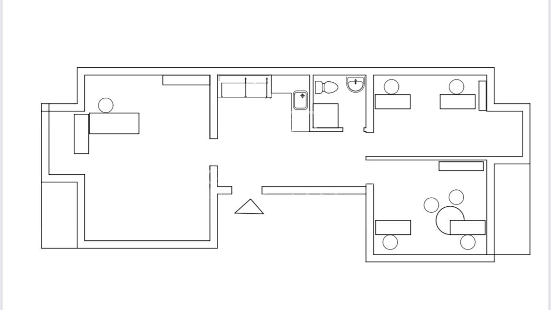
Übersicht
- 3-Zimmer
- 2
- 0
- 98
- 2007
Einzelheiten
Aktualisiert am April 22, 2026 beim 4:25 p.m.-
Eigenschaft ID 20167596
-
Preis 550€
-
Quadratur 98
-
Schlafräume 2
-
Zimmer 3
-
Bad 0
-
Jahr der Errichtung 2007
-
Art der Immobilie 3-Zimmer
-
Status der Immobilie Zu vermieten
-
Boden 2
-
Fußböden 5
-
Möbel Möbliert
-
Art der Konstruktion Ziegelstein
-
Preis pro Quadratmeter. 6
-
Heizung Elektrizität
-
Balkone (Stk.) 2
-
Badezimmer mit Toilette (Nr.) 1
Beschreibung
Офис с комфортно и функционално пространство на ул.Генерал Колев
Три просторни и светли помещения, които позволяват различни интериорни решения и създават усещане за уют.
– Удобно разпределение с отделни зони за работа; балконът осигурява допълнителна светлина и въздух.
Обзаведен с обособен кухненски кът и приемна.
Поставени климатици в трите стаи.
– Поддържана обща част и сигурна сграда с асансьор; наличието на технически паспорт гарантира конструктивна обезпеченост и спокойствие за новия собственик.
Помещението е подходящо за адвокатска , счетоводна или друг вид дейност ,кантора, образователен или занимателен център.
– Районът е с отлична комуникация и лесен достъп до централни булеварди и обществения транспорт, което прави ежедневието по-удобно.
Für die Nachbarschaft:
- Das Bezirkskrankenhaus ist eine der begehrtesten Gegenden in Varna - mit schnellem Zugang zu Gesundheitsdiensten, Geschäften, Restaurants und Haltestellen öffentlicher Verkehrsmittel.
– В близост има зелени площи и образователни институции.
